0

Cuers, appartement T3, terrasse et parkings

Cuers (83390)
Réf : 3857V

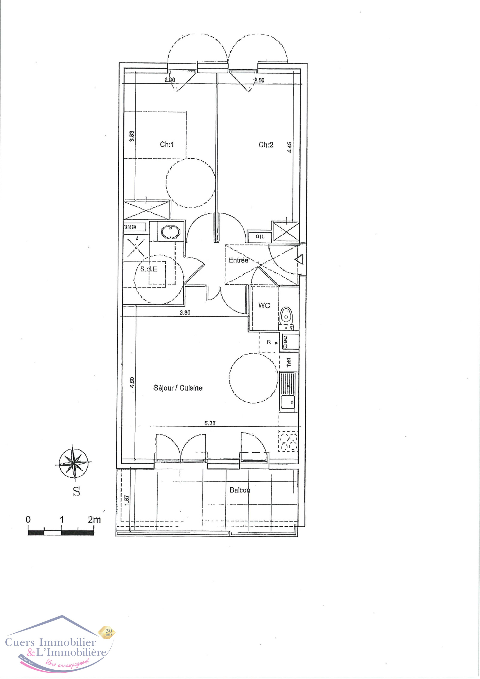
Cuers, au calme, dans une résidence récente, fermée et sécurisée, bel appartement traversant de type T3 de 60m2 au premier étage, avec terrasse et 2 places de stationnement privatives.

Il se compose d'une entrée, un salon salle à manger avec cuisine ouverte aménagée, deux chambres avec placards, une salle d’eau et un wc avec coin buanderie.

Une large terrasse de 10m2 orientée plein sud. Deux places de parking privatives en sous-sol.

Climatisation réversible dans la pièce à vivre. Menuiseries en PVC double vitrage, visiophone.

A découvrir rapidement.

Les informations sur les risques auxquels est exposé ce bien sont disponibles sur le site Géorisques : www.georisques.gouv.fr

Prix du bien
Pièce(s) 3
Chambre(s) 2

Caractéristiques du bien

Caractéristiques Valeurs
Code postal 83390
Surface habitable (m²) 60,18 m²
Surface loi Carrez (m²) 60,18 m²
Nombre de chambre(s) 2
Nombre de pièces 3
Etage 1
Ascenseur OUI
Nb de salle d'eau 1
Cuisine Américaine
Mode de chauffage Electrique
Type de chauffage Panneaux rayonnant
Format de chauffage Individuel
Terrasse OUI
Exposition Sud
Année de construction 2015

Infos financières

Caractéristiques Valeurs
Les honoraires d'agence seront intégralement à la charge du vendeur  
Taxe foncière annuelle 1 298 €
Ces biens peuvent vous intéresser