0

CUERS, VILLA T4 + GARAGE + STATIONNEMENT

Cuers (83390)
Réf : 4076

Cuers, proche du centre et des commodités, villa de 2014 de type 4 d'environ 80m² avec jardinet, garage et stationnements.

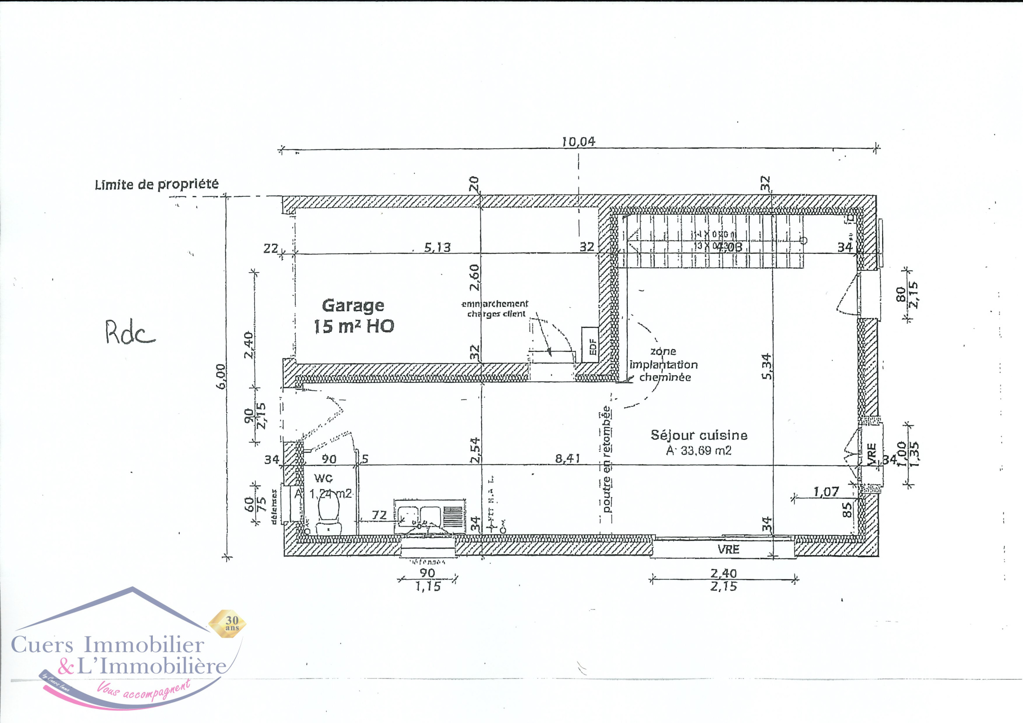
Elle se compose en rez-de-chaussée, d'une cuisine aménagée ouverte sur un salon/salle à manger, et d'un wc.

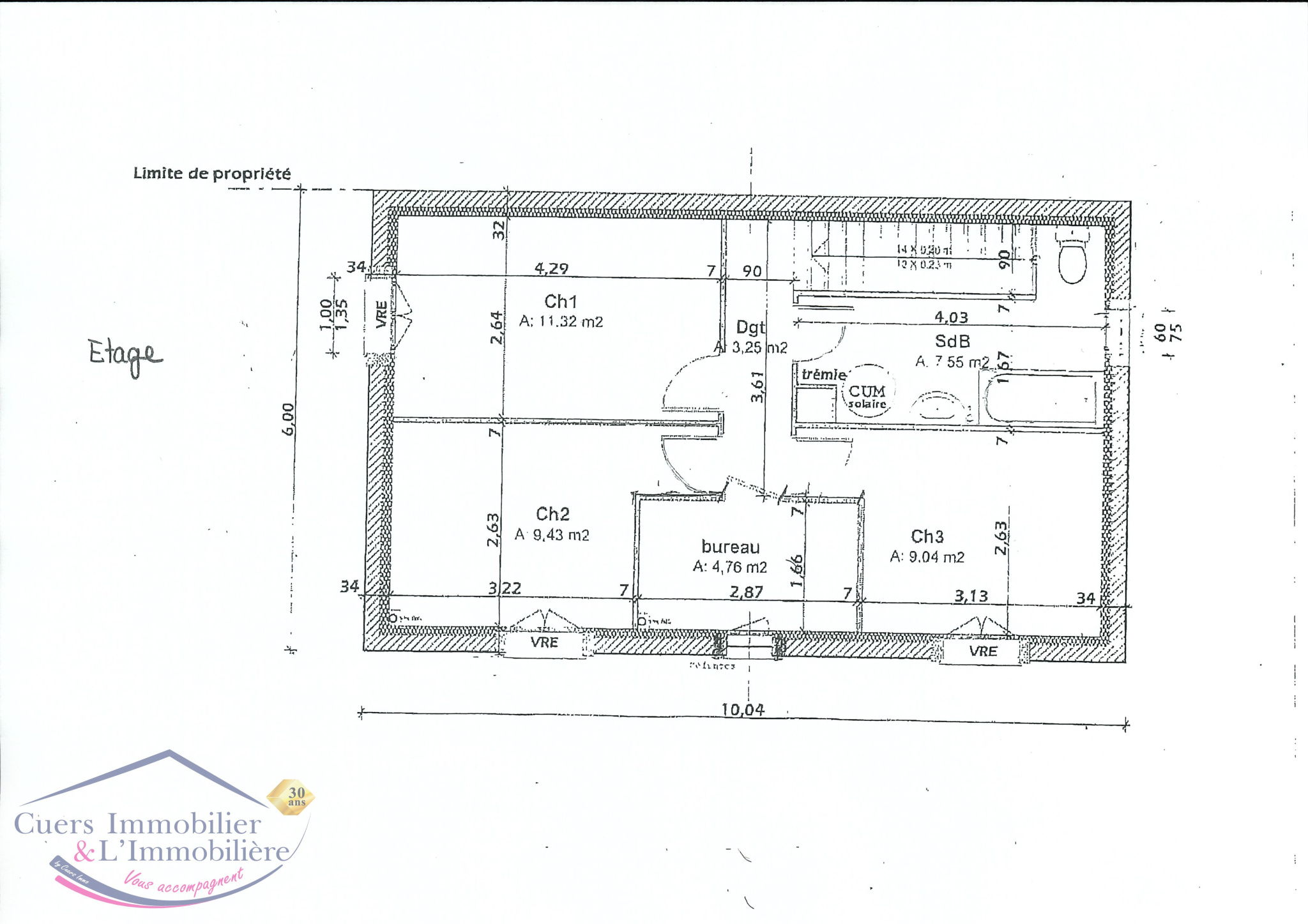
A l'étage, un dégagement desservant trois chambres, un dressing ou bureau et une salle de bains avec wc.

Le tout sur une parcelle de 223m² comprenant un jardinet, un garage attenant d'environ 15m² et deux places de stationnement.

Poêle à granules, chauffe-eau solaire, volets roulants électriques, panneaux photovoltaïques, fibre ...

A découvrir rapidement !

Les informations sur les risques auxquels est exposé ce bien sont disponibles sur le site Géorisques : www.georisques.gouv.fr

Prix du bien
Pièce(s) 4
Chambre(s) 3

Caractéristiques du bien

Caractéristiques Valeurs
Code postal 83390
Surface habitable (m²) 80 m²
surface terrain 223 m²
Surface loi Carrez (m²) 80,54 m²
Nombre de chambre(s) 3
Nombre de pièces 4
Nombre de niveaux 2
Nb de salle de bains 1
Cuisine Américaine
Type de cuisine Equipée
Mode de chauffage Autre
Type de chauffage Poêle
Format de chauffage Individuel
Murs mitoyens 1
Nombre de garage 1
Année de construction 2014

Infos financières

Caractéristiques Valeurs
Les honoraires d'agence seront intégralement à la charge du vendeur  
Taxe foncière annuelle 1 536 €
Ces biens peuvent vous intéresser